Property Description

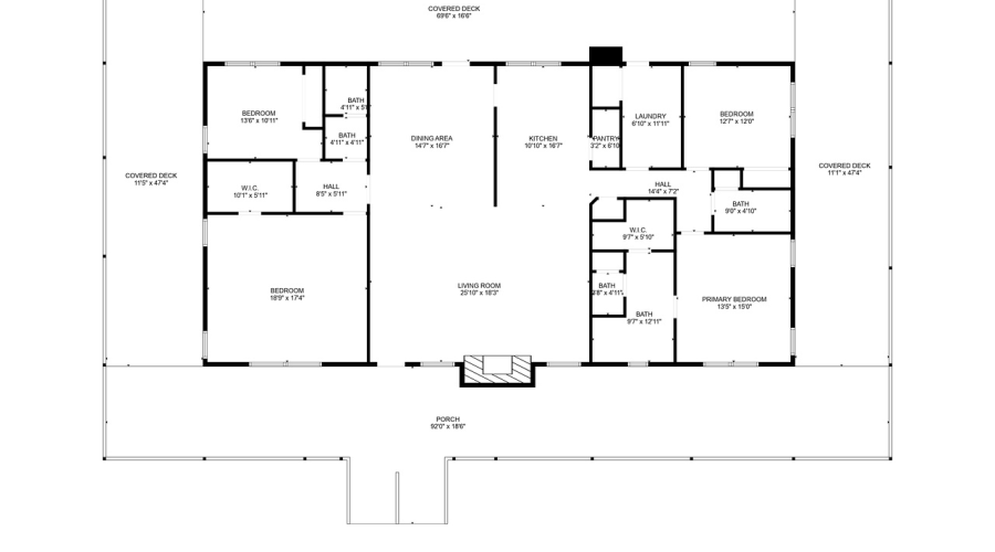
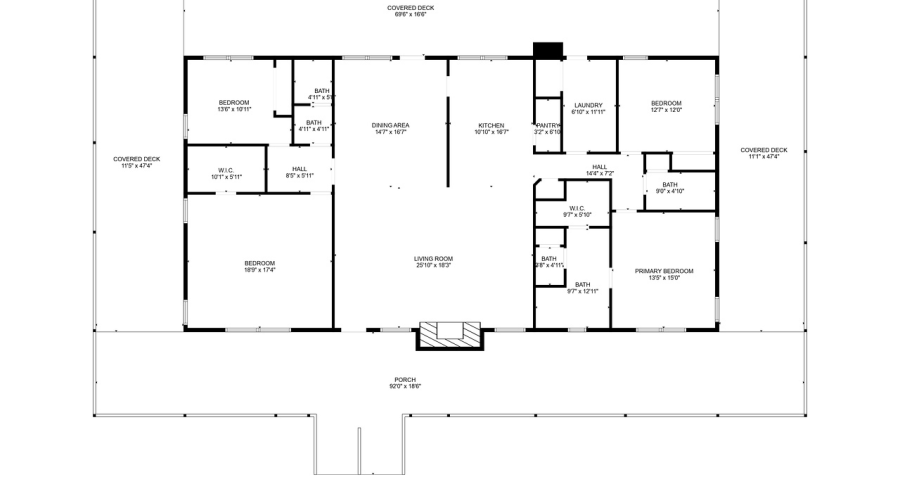
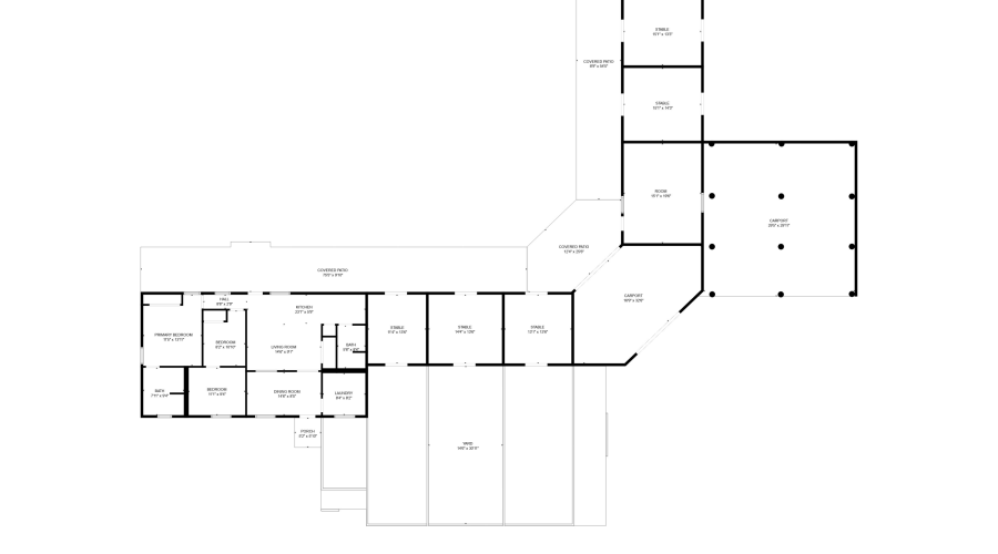
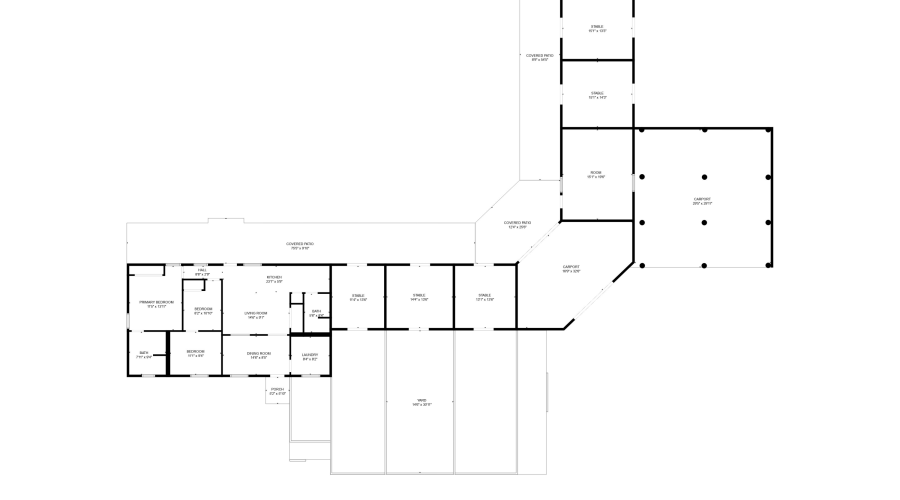
MOUNTAIN MAJESTRY MEETS EQUESTRIAN RANCH LUXURY!! Nestled amid tall pines and open pastures, just ten minutes from Show Low and Pinetop, this custom home places you in Arizona's White Mountains. Enjoy year-round outdoor recreation and easy access to local shops and restaurants. The residence features expansive wraparound decks with panoramic views of pastures, horses, stables, and landscaping. This four-bedroom, three-bathroom home is designed for entertaining, with an open floor plan, tongue and groove wood, and custom woodwork. The chef's kitchen has granite countertops and stainless steel appliances. Three domestic wells ensure a reliable water supply, with eco-friendly solar backup. The equine barn offers six stalls with turnout paddocks, a tack room, and a breezeway. Connected to theConnected to the barn is a 1,107-square-foot apartment with two bedrooms, two bathrooms, and a living area. The property also features a massive garage and workshop. Don't miss this opportunity to own a ranch in Arizona's White Mountains. Watch the video: https://photos.smugmug.com/2025-Real-Estate/FOUROFAKIND/i-fTnzXwX/0/McVpZ3Wk5WMF4jCMVPVdptXgFfDC5HhNWDnHQHT5S/1280/SPONSELLER-1280.mp4

Facts and features
$1,349
87
Interior details
: Disposal, Pantry, Refrigerator, Gas Range, Dishwasher
: Fireplace
Master Downstairs,smoke Detector(s),vaulted Ceiling(s)
: Forced Air, Ets
Property details
11.24.2025 13:02:35
Site Built
Active
0.00
Lakeside
89.63x85.8x118.32x94.75
Res/agricultura
4431.78
2024
No
No
No
Quarter
Cul-de-sac,in The Trees,landscaped,rain Gutters,street Paved,tall Pines On Lot
Yes
Construction details
Wood Frame
Carpet,plank,tile,wood
Metal,pitched
Cabin
Utilities / Green Energy Detai
Electricity,piped Propane,septic Tank Installed,star Valley Water,trash
Neighborhood / Community
Lakeside Unsubdivided
US
AZ
Lakeside
85929
Other
Yes
: Recorded Survey
Dryer,utility Room,washer
Listing provided by
Aspen Properties, Inc. - Pinetop
Georgine G Nielson

9382 Mountain Meadow Lane, Lakeside, Arizona 85929

422 Sponseller Siding, Lakeside, Arizona 85929

4 Bedrooms
3 Bathrooms
2,520 Sqft
$3,400,000
Listing ID #257770
Facts and features
Price : $3,400,000
Bedrooms : 4
Bathrooms : 3
Square Footage : 2,520 Sqft
Property Type : Residential
Year Built : 1997
Listing ID : 257770
Lot Area : 7 Acre
Living on The Rim
See this property or more information