Property Description

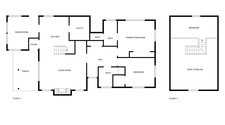
Turnkey Furnished Log Cabin Retreat in Lakeside Summer Homes. Tucked beneath the whispering tall pines of the coveted Lakeside Summer Homes subdivision, this fully furnished log cabin offers the perfect blend of rustic charm and modern comfort. From the moment you arrive, the inviting covered front porch and rich wood flooring set the tone for a home that feels both cozy and refined.Step inside to discover the timeless beauty of exposed wood rafters, tongue-and-groove ceilings, and a dramatic log staircase. The open-concept great room is anchored by a stunning rock fireplace and framed by soaring vaulted ceilings--ideal for relaxing or entertaining.The kitchen features custom cabinetry, a welcoming eating bar, and flows effortlessly into the dining area.Downstairs, you'll find two spacious bedrooms and two full baths. Upstairs, the loft offers flexible space for a third bedroom, home office, or game room. A generous utility room includes an additional half bath, and a built-in desk nook in the hallway adds a thoughtful touch for remote work or study.

Outside, the expansive backyard is a private sanctuary. Enjoy evenings under the stars with a paver patio, lush turf, covered seating area, BBQ station, and a luxurious spaperfect for unwinding after a day in the mountains.

With 1,670 square feet of living space on a beautifully wooded 0.84-acre lot, this property is a rare opportunity to embrace mountain living with style, comfort, and serenity.

Imagine living in the White Mountains of Arizona where you have 4 beautiful seasons and where you can breathe in the fresh mountain air and enjoy the 40 lakes and over 600 miles of rivers and streams. In addition to the amazing fishing, this area has one of the most extensive trail systems in the southwest for hiking, biking, horseback riding, quadding and more. Sunrise Ski Resort is also just 40 minutes away with 3 beautiful mountains to ski, snow board or sled. If shopping is your interest, you will love the antique stores and the multitude of arts and craft shows that happen in the summer. The music festivals have something to fit everyone's enjoyment. Do you love to golf? There are 7 amazing golf courses, 3 that are public. The White Mountains, where this home/cabin is the best kept secret of Arizona! Come and explore and enhance your living! Pinetop-Lakeside was also voted 'Best Cabin Region in the U.S"... Embrace the MAGIC!

Facts and features
$340
6
Interior details
: Electric Range, Microwave, Pantry, Refrigerator
: Fireplace
: Bottled Gas, Forced Air, Wood
Property details
10.02.2025 10:26:39
Site Built
Active
0.00
Lakeside
W
89.63x85.8x118.32x94.75
Gu County
1874.96
2024
No
No
Yes
Annually
Covered Porch/deck,guest Quarters,in The Trees,porch/deck,tall Pines On Lot,view Of Wooded/trees,work Shop
No
West USA Realty - Pinetop
Construction details
Log Home
Tile,wood
Metal,pitched
Cabin,multi-level
Neighborhood / Community
Lakeside Summer Home Subd
US
AZ
Lakeside
85929
Other
No
Dryer,utility Room,washer
Listing provided by
West USA Realty - Pinetop
Beverly R Best

669 Monarch Circle, Lakeside, Arizona 85929

669 Monarch Circle, Lakeside, Arizona 85929

2 Bedrooms
2 Bathrooms
1,468 Sqft
$499,000
Listing ID #258149
Facts and features
Price : $499,000
Bedrooms : 2
Bathrooms : 2
Square Footage : 1,468 Sqft
Property Type : Residential
Year Built : 1981
Listing ID : 258149
Lot Area : 0.84 Acre
Living on The Rim
See this property or more information